| Prijs | € 325.000,- k.k. |
| Type object | Appartement, portiekflat |
| Woonoppervlakte | 47 m² |
| Aanvaarding | In overleg |
| Status | Nieuw in verkoop |
OPEN HUIS: WOENSDAG 21 JANUARI/DONDERDAG 22 JANUARI VAN 15:00-17:00 UUR, DIVERSE APPARTEMENTEN TE BEKIJKEN! City Tower is niet zomaar een woontoren. Natuurlijk heb je hier de kans een instapklaar en modern appartement te bemachtigen maar dit gebouw is meer dan dat en onderscheid zich door tal van extra’s die je niet snel elders zult treffen. Wat dacht je van een compleet ingerichte fitnessruimte met de juiste apparatuur voor een intensieve workout of waar je na een drukke werk- of studiedag lekker kunt ontspannen om vervolgens nog even heerlijk te relaxen in de sauna. Wil je even genieten van het buitenleven maar heb je niet de behoefte om de stad in te trekken? Begeef je dan naar het grote gezamenlijke dakterras en ervaar het prachtige uitzicht op de skyline van Eindhoven in een ontspannen sfeer. Maar ook aan gemak is gedacht, in je appartement beschikt je over een eigen wasmachineaansluiting maar je kunt ook gebruik maken van een volledig ingerichte wasserette met professionele wasmachines en drogers en is er een ruime gemeenschappelijke vergaderruimte, een ideale plek om te studeren en/of te werken en waar je in een comfortabele omgeving kunt socializen en je buren leren kennen. Parkeren in de binnenstad een probleem? Niet hier, in de ondergrondse en afgesloten parkeergarage kun je voor een schappelijk bedrag een parkeerplaats huren. Bel je enthousiast geworden? Kom dan zeker eens een kijkje nemen, we hebben meerdere appartementen beschikbaar, voor ieder wat wils. City Tower ligt midden in het centrum van Eindhoven, op slechts 300 meter van het Centraal Station. Het gebouw is dan ook uitstekend bereikbaar met het openbaar vervoer, waardoor je gemakkelijk de stad in en uit kunt reizen. Highlights: • Slechts 300 m van Centraal station Eindhoven • 400 m van het belangrijkste winkelgebied van Eindhoven • Minder dan 1 km van de TU/e • Ongeveer 1 km van Fontys Hogescholen • Boodschappen doen, even een broodje halen of een drankje doen? Bijna alles vind je om de hoek!
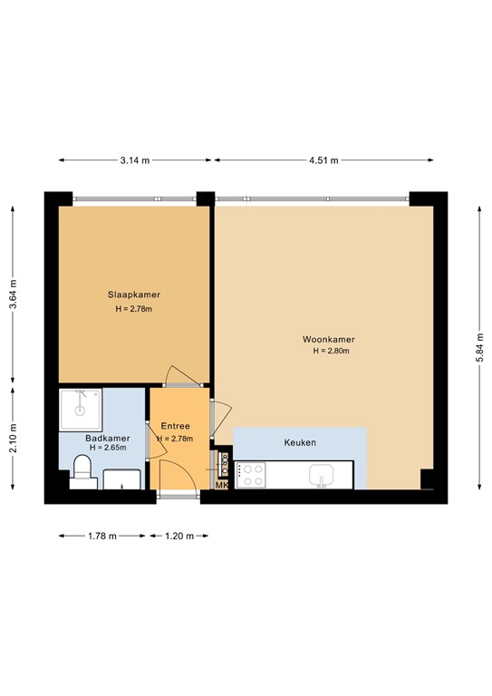
Aangeboden appartement: Een van de beschikbare appartementen is Pastoor Petersstraat 172-22, een ruim opgezet 2-kamerappartement gelegen op de 3e verdieping aan de rustige zijde. Dit appartement beschikt naast een ontvangsthal, heerlijke slaapkamer en ruim opgezette woonkamer over een moderne keuken voorzien van een kookplaat, afzuigkap, koelkast, combimagnetron en natuurlijk een vaatwasser. De strakke badkamer beschikt over een heerlijke douche, een hangcloset, desginradiator en vaste wastafel.
• Nieuw gerealiseerd in 2015 in een voormalig kantoorgebouw en goed geïsoleerd; • Gezamenlijke fietsenstalling én de mogelijkheid tot het bijkopen van een eigen berging, verschillende groottes beschikbaar!; • Parkeerplaats bij te huren voor slechts € 65,- per maand; • Professioneel opgezette VVE, servicekosten bedragen thans circa € 144,- • Tv, glasvezel en internet zijn al voor je geregeld, hiervoor betaal je maandelijks € 27,- • Verwarming loopt via het Warmtenet, prijzen zijn gelijk aan de tarieven van de Wet collectieve warmte (Wcw); • Meerdere appartementen en types beschikbaar, vraag naar de mogelijkheden; • Er is een projectnotaris van toepassing; • Ieder appartement is snel te aanvaarden indien gewenst.
| Referentienummer | 09146 |
| Vraagprijs | € 325.000,- k.k. |
| Servicekosten | € 144,- |
| Inrichting | Niet gestoffeerd |
| Inrichting | Niet gemeubileerd |
| Status | Nieuw in verkoop |
| Aanvaarding | In overleg |
| Aangeboden sinds | Zaterdag 17 januari 2026 |
| Type object | Appartement, portiekflat |
| Woonlaag | 4e woonlaag |
| Soort bouw | Bestaande bouw |
| Toegankelijkheid | Mindervaliden Senioren |
| Bouwperiode | 2015 |
| Dakbedekking | Dakpannen |
| Type dak | Zadeldak |
| Isolatievormen | Dakisolatie HR-glas Muurisolatie Vloerisolatie Volledig geïsoleerd |
| Woonoppervlakte | 47 m² |
| Inhoud | 164 m³ |
| Aantal bouwlagen | 1 |
| Aantal kamers | 2 (waarvan 1 slaapkamer) |
| Aantal badkamers | 1 |
| Ligging | Dichtbij openbaar vervoer In centrum Nabij school Nabij snelweg Nabij treinstation Vrij uitzicht Zelfstandig |
| Type | Zonneterras |
| Energielabel | B |
| Warm water | Elektrische boiler |
| Verwarmingssysteem | Stadsverwarming |
| Badkamervoorzieningen | Inloopdouche Toilet Wasmachineaansluiting Wastafel |
| Parkeergelegenheid | Parkeerkelder |
| Heeft kabel-tv | Ja |
| Heeft een lift | Ja |
| Tuin aanwezig | Ja |
| Beschikt over een internetverbinding | Ja |
| Kadastrale aanduiding | Woensel G 8870 |
| Omvang | Appartementsrecht of complex |
| Eigendomsituatie | Eigen grond |