Beschrijving

**Ruimte, rust en comfort op een toplocatie in Eindhoven**

Je staat op het punt een unieke kans te ontdekken: Generaal Linckerslaan 58 in Eindhoven. Geschakelde eengezinswoning, met serre, achterom en gelegen op een ruim perceel van 242m2.

Deze woning, gebouwd in 1977, ademt de sfeer van degelijkheid en duurzaamheid die je mag verwachten uit die tijd, gecombineerd met het comfort dat je zoekt in een modern huis. De wijk Rapenland staat erom bekend groen, vriendelijk en kinderrijk te zijn. Alle faciliteiten – winkels, scholen, sportverenigingen, zorg en openbaar vervoer – liggen praktisch om de hoek.

Indeling

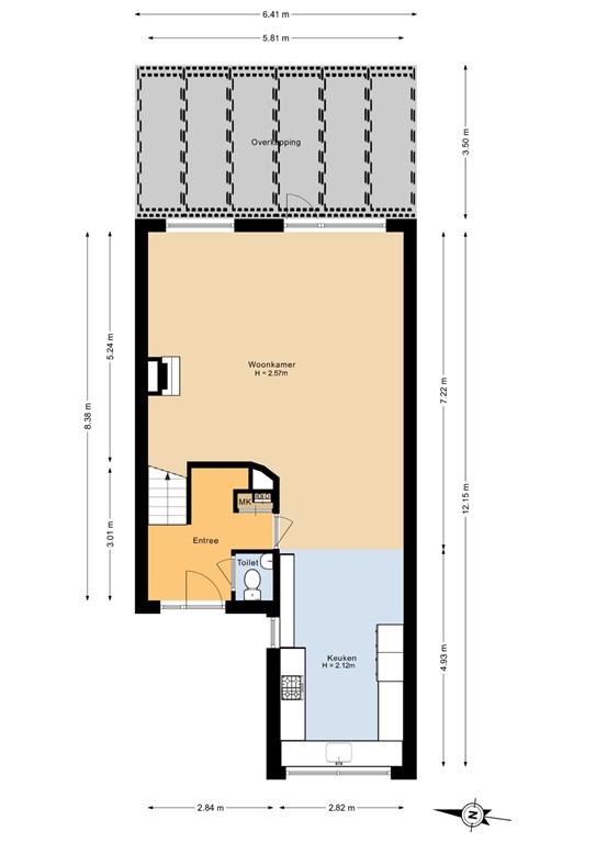
Entree, separate betegeld toilet, garderobe, meterkast ( 7 groepen, 1 aardlekschakelaar), trapopgang, toegang woonkamer.

**Woonkamer, ruim speels ingedeelde woonkamer, vloer is voorzien van een gelakte eikenhoutenplank, deze vloer is doorgelegd over de gehele begane grond. De wanden zijn afgewerkt met aan de ene zijde pleisterwerk en aan de andere zijde, gemetselde stenen in witte kleur afgewerkt.
Raampartijen en deur naar tuin met toegang naar de overkapping/serre.
Glastype ramen HR+++.

De keuken is gesitueerd aan de voorzijde en is geplaatst in een U vorm en is voorzien van diverse inbouw apparatuur, Atag combi/oven, Atag combi/stoom, vaatwasser, koelkast met vriesvak en een composiet werkblad. Diverse onder en bovenkastjes zorgen voor veel opbergmogelijkheid.

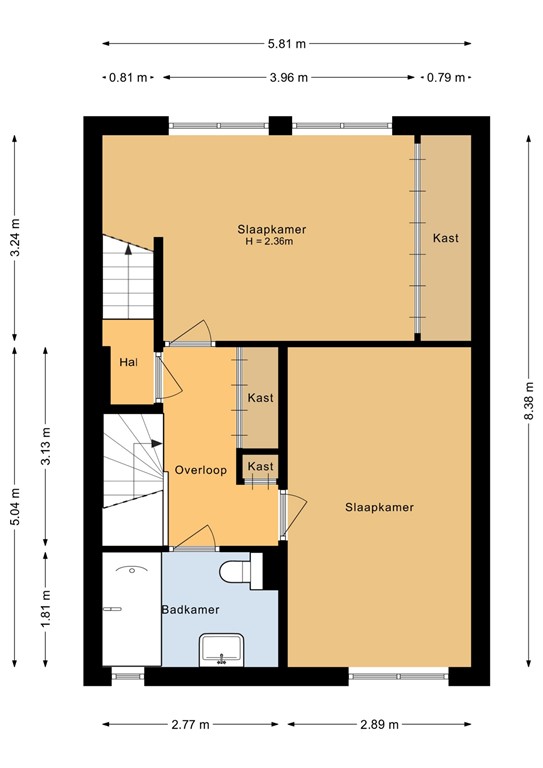
**Eerste verdieping**:

Overloop met 2 inbouwkasten en doorloop naar 2-tal slaapkamers en badkamer.
-Masterbedroom aan achterzijde, verlaagd plafond met spots.
-Slaapkamer aan voorzijde, verlaagd plafond met spots.
Glastype HR++.

De overloop en slaapkamers zijn voorzien van een laminaatvloer.

**Badkamer**
De Badkamer is in 2024 vernieuwd, in lichte kleur betegeld, zowel de vloer als wandbetegeling en ingericht met badmeubel, toilet, bad, douchecombi, spiegelplafond.

**Tweede verdieping**
De tweede verdieping is aan de achterzijde voorzien van een gemetselde stenen opbouw, deze is in spouw gezet en geeft een extra ruimte aan de 2e etage, waardoor er een volwaardige slaapkamer is gecreëerd.
Glastype ramen HR++.
Was/cv ruimte met plaats voor de cv-ketel (Nefit HR 2015) en wasmachine. Ideale wasruimte en heeft ook een dakraam.

**Genieten van de tuin – jouw eigen stukje buiten**

Laat je verrassen door de royale achtertuin. Op mooie dagen is dit dé plek waar binnen en buiten moeiteloos in elkaar overlopen. Via de zijkant van de woning is de tuin ook makkelijk te bereiken. De tuin is netjes aangelegd met diverse groenborders, hoge bomen en aan de achterzijde gelegen stenen berging met electra en wasbak.
De tuin is op het oosten gelegen.

**Duurzaam en toekomstbestendig**

Het energielabel verraadt het al een beetje: dit huis is degelijk gebouwd en met wat aanpassingen naar eigentijdse wensen maak je het in een handomdraai nog duurzamer. Denk bijvoorbeeld aan isolerende maatregelen of zonnepanelen – de mogelijkheden zijn er!

Voor de deur is genoeg parkeerplek, zodat je nooit hoeft te zoeken naar een parkeerplaats na een lange dag. Bovendien is de straat rustig en kindvriendelijk; een plek waar buren elkaar nog kennen en oog voor elkaar hebben.

**Kortom: jouw thuis in Eindhoven**

Bijzonderheden

-€525.000,- k.k.
-Kadastraal bekend gemeente Woensel, sectie L, nummer 3343
-Ruim perceel 242m2

Kenmerken