Beschrijving

***Instapklaar appartement met dakterras voor starters in de bruisende wijk Mensfort***

Ben jij een starter op zoek naar je eigen stekkie in Eindhoven? Dan is dit gloednieuwe appartement aan de Barrierweg 177-A, met bouwjaar 2021, precies wat je zoekt! De woning heeft een uniek karakter en is gelegen in de populaire wijk Mensfort, waar alles wat je nodig hebt binnen handbereik is.

***Modern design met een ruim dakterras***

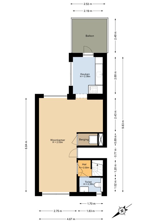
Dit appartement typeert zich door zijn moderne design en strakke afwerking. Met het dakterras heb je bovendien een heerlijke buitenruimte waar je kunt genieten van de zon en het uitzicht over de levendige omgeving. Ideaal voor gezellige avonden met vrienden of om even tot rust te komen na een lange dag.

***Energiezuinig wonen***

Met energielabel B is deze woning niet alleen comfortabel, maar ook nog eens energiezuinig. Dat betekent lagere energierekeningen en een duurzamere levensstijl, zonder in te leveren op comfort. 

***Levendige buurt met alle voorzieningen binnen handbereik***

De wijk Mensfort staat bekend om zijn levendige sfeer en uitstekende voorzieningen. Van gezellige winkels en trendy eetgelegenheden tot groene parken en sportfaciliteiten, je vindt het allemaal op steenworp afstand. Hier beleef je het echte stadsleven in al zijn facetten.

***Ideaal voor starters***

Dit appartement met maisonnette-indeling is ideaal voor starters die op zoek zijn naar een eigentijdse en betaalbare woning in een bruisende omgeving. Kom snel een kijkje nemen en ontdek of dit jouw nieuwe thuis kan worden!

Bijzonderheden

- Vlakbij centrum Eindhoven, winkels en scholen 
- Vrij parkeren in de straat
- Appartement op de 1e/2e etage heeft een dakterras en er is geen gebruikt van een berging.
- Het appartement is in 2021 gerenoveerd en voorzien van kunststof kozijnen v.v HR ++ glas
- Gemeente Woensel, sectie G, complexaanduiding 8696A, appartementsindex 5 (onderdeel van VvE Barrierweg 175/177/179, 3 gesplitste woonhuizen)
- Van de 3 gesplitste woningen, totaal 6 appartementen zijn er inmiddels een 5-tal verkocht aan particuliere eigenaren. 
- Appartement behoort tot een uitponding.
- Indicatie geschatte bijdrage aan de Vereniging van Eigenaren: € 20,00 per maand  t.b.v opstalverzekering.

Kenmerken