| Prijs | € 683,- /mnd |
| Type object | Appartement, Studentenkamer, wonen overig |
| Woonoppervlakte | 13 m² |
| Aanvaarding | Per zondag 1 februari 2026 |
| Status | Verhuurd |
Gemeubileerde studio beschikbaar gelegen aan de Kanunnikensteeg in het centrum van Oirschot nabij alle voorzieningen. Alle studio’s zijn volledig gemeubileerd met bed, tafel, stoelen, kast, tv en eigen wastafel. Ook beschikken alle studio’s over een eigen zelfstandige kitchenette dat voorzien is van alle benodigdheden zoals koelkast met vriesvak, spoelbak, elektrische kookplaat en inventaris.
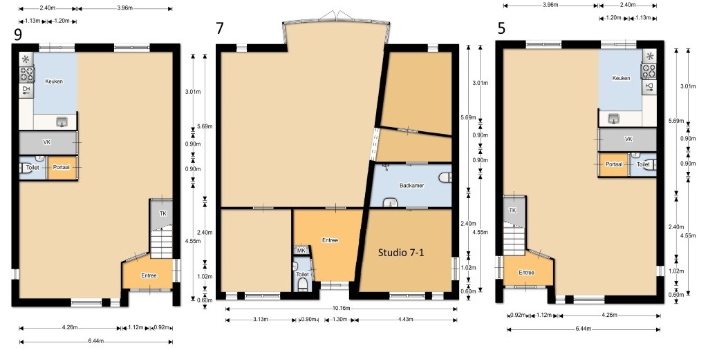
Kanunnikensteeg 9: Begane Grond: Toegang tot zelfstandige benedenwoning en opgang naar boven voor studio’s. 1e verdieping: Studio 3: Aan de achterzijde, 13m2 1e verdieping: Tweemaal gedeelde toiletten, douches en wasruimtes.
- Gemeubileerde studio - Huurprijs per maand € 683,- p/m - Inclusief gas/water/elektra/tv/internet - Waarborgsom ter hoogte van € 760,- - Minimale huurperiode 6 maanden - Geschikt voor één persoon - Geen huisdieren toegestaan - Beschikbaar per 01-02-2026
| Referentienummer | 09143 |
| Huurprijs | € 683,- per maand (incl. servicekosten, incl. gas, incl. water, incl. elektriciteit, gemeubileerd, gestoffeerd) |
| Borg | € 760,- |
| Servicekosten | € 303,- per maand |
| Inrichting | Ja |
| Inrichting | Gemeubileerd |
| Status | Verhuurd |
| Aanvaarding | Per zondag 1 februari 2026 |
| Aangeboden sinds | Dinsdag 13 januari 2026 |
| Laatste wijziging | Maandag 26 januari 2026 |
| Type object | Appartement, Studentenkamer, wonen overig |
| Woonlaag | 2e woonlaag |
| Soort bouw | Bestaande bouw |
| Bouwperiode | 2017 |
| Isolatievormen | Dakisolatie Dubbel glas Muurisolatie Vloerisolatie |
| Woonoppervlakte | 13 m² |
| Inhoud | 34 m³ |
| Aantal bouwlagen | 1 |
| Aantal kamers | 1 |
| Ligging | Dichtbij openbaar vervoer In centrum In woonwijk |
| Warmtebron | Gas |
| Combiketel | Ja |
| Eigendom | Eigendom |
| Warm water | CV-ketel |
| Verwarmingssysteem | Centrale verwarming |
| Ventilatie methode | Mechanische ventilatie |
| Heeft kabel-tv | Ja |
| Heeft ventilatie | Ja |