Price | €375,000 |
Type of residence | Apartment, flat with shared staircase, apartment |
Liveable area | 79 m² |
Acceptance | By consultation |
Status | New for sale |
Wonen in het hart van Eindhoven: jouw eigen appartement aan de Markt Altijd al gedroomd van wonen midden in het bruisende centrum van Eindhoven? Dit moderne recentelijk gerenoveerd 3-kamerppartement van ca.79 m² ligt op de tweede verdieping en biedt alles wat je nodig hebt om te genieten van het stadsleven, met direct uitzicht op de levendige Markt. Een comfortabel thuis in de binnenstad Het appartement beschikt over twee praktische slaapkamers, een ruime en lichte woonkamer en een moderne keuken met alle benodigde inbouwapparatuur. De nette badkamer maakt het geheel compleet. Hier geniet je van privacy en comfort, met alle voorzieningen binnen handbereik en geen gedeelde ruimtes — jouw thuis is écht jouw eigen plek. Genieten op het gezamenlijke dakterras Naast je eigen appartement kun je gebruikmaken van het ruime, gemeenschappelijke dakterras. Een heerlijke plek om even te ontspannen, tot rust te komen met een goed boek of te genieten van een borrel met vrienden, terwijl je uitkijkt over de skyline van Eindhoven. Veilige fietsenberging Voor de fiets is er een praktische, afgesloten fietsenberging aanwezig. Zo weet je zeker dat je fiets altijd veilig staat en je de stad gemakkelijk per fiets kunt ontdekken. Leven op de Markt Wonen aan de Markt betekent dat alles wat Eindhoven zo aantrekkelijk maakt, direct voor je deur ligt: gezellige cafés en terrassen, goede restaurants, hippe winkels en alle voorzieningen die je nodig hebt. Of je nu uit eten wilt, wilt shoppen of een avond wilt genieten van het bruisende nachtleven — het kan allemaal zonder ver te hoeven lopen. Jouw nieuwe thuis in de stad Dit appartement is ideaal voor mensen die op zoek zijn naar een comfortabele, centrale plek in het hart van Eindhoven. Of je nu de levendigheid van de stad opzoekt of liever geniet van de rust in je eigen woning, hier heb je alle vrijheid. Nieuwsgierig geworden? Grijp deze kans en ontdek of dit appartement jouw nieuwe thuis kan worden — midden in het kloppend hart van Eindhoven!
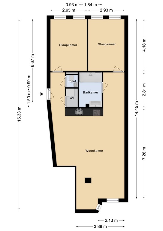
Woonkamer: Bij binnenkomst kom je in de royale woonkamer die zich uitstrekt over de gehele voorzijde van de woning. Met een breedte van bijna 4 meter en een diepte van ruim 7 meter biedt deze ruimte volop mogelijkheden voor een gezellige zithoek en een ruime eethoek. Dankzij de schuine gevel en de grote raampartijen aan de voorzijde geniet je hier van veel lichtinval en een speelse indeling. Keuken: De keuken is centraal in de woonkamer gesitueerd, direct naast de entree en tegenover de badkamer. Dit maakt het een praktische en functionele plek, waarbij koken en wonen op een prettige manier samenkomen. Slaapkamers: Het appartement beschikt over twee slaapkamers, beide gelegen aan de achterzijde van de woning: - De linker slaapkamer meet ca. 2,95 m breed en 4,18 m diep. - De rechter slaapkamer is vrijwel even groot met ca. 2,93 m breed en 4,18 m diep. Beide kamers zijn toegankelijk vanuit de woonkamer en bieden rust en privacy. Badkamer: De badkamer is centraal gelegen in de woning, direct bereikbaar vanuit de woonkamer en naast de slaapkamers. Deze ruimte is praktisch ingedeeld met onder andere ruimte voor een wastafel en douche. Toilet & CV-ruimte: Naast de badkamer bevindt zich een apart toilet, wat extra comfort biedt. De CV-/technische ruimte grenst aan het toilet en is netjes weggewerkt, maar toch eenvoudig bereikbaar. ***PLUS*** - Praktische indeling met scheiding tussen wonen en slapen - Twee slaapkamers aan de rustige achterzijde - Grote en lichte woonkamer met speelse indeling - Centraal geplaatste keuken en badkamer - Apart toilet en aparte CV-/bergruimte
*Scherpe prijsstelling *Compleet gerenoveerd appartement: Modern en fris 3-kamerappartement, dat recent volledig is gerenoveerd voor optimaal comfort; *Ruim woonoppervlak: Het appartement heeft een woonoppervlakte van circa 79 m²; *Midden in de stad wonen: Leven in het bruisende hart van Eindhoven, met alles op loop- of fietsafstand; *Energielabel C: Een energiezuinige woning die ook nog eens goed is voor het milieu en je energiekosten; *Nette ontvangstruimte: Een verzorgde entree die bijdraagt aan een prettige eerste indruk en een veilig gevoel; *Lift aanwezig: Altijd comfortabel en snel naar je appartement, ongeacht op welke verdieping je woont; *Fietsenberging: Veilig en gemakkelijk je fiets stallen, altijd klaar om de stad in te gaan; *Gezamenlijk dakterras: Een heerlijke plek om buiten te zijn en te genieten van de stad, samen met medebewoners; *VvE-bijdrage: De VvE-kosten bedragen €257,25 per maand, inclusief voorschot stookkosten en servicekosten.
Reference number | 09104 |
Asking price | €375,000 |
Service costs | €257.25 |
Status | New for sale |
Acceptance | By consultation |
Offered since | 09 October 2025 |
Type of residence | Apartment, flat with shared staircase, apartment |
Floor | 3rd floor |
Type of construction | Existing estate |
Accessibility | People with disabilities Seniors |
Construction period | 1974 |
Roof materials | Bitumen |
Rooftype | Flat |
Isolations | Cracking seal Floor Full HR glazing Roof Wall |
Floor Surface | 79 m² |
Content | 198 m³ |
Number of floors | 1 |
Number of rooms | 2 (of which 2 bedrooms) |
Number of bathrooms | 1 (and 1 separate toilet) |
Location | City centre Near GVD Near highway Near public transport Near railway station Near school Near shopping center |
Energy certificate | C |
Water heating | Centrally supplied |
Heating | District heating |
Ventilation method | Mechanical ventilation |
Bathroom facilities | Shower Sink Walkin shower |
Has cable TV | Yes |
Has an elevator | Yes |
Has ventilation | Yes |
Registered at Chamber of Commerce | Yes |
Annual meeting | Yes |
Periodic contribution | Yes |
Reserve fund | Yes |
Long term maintenance plan | Yes |
Maintenance forecast | Yes |
Home insurance | Yes |
Cadastral designation | Eindhoven A 14 |
Range | Condominium |
Ownership | Full ownership |